3 ZI-ERDGESCHOSS-TERRASSE-VASOLDSBERG 50a/1
70,48 m² m2 / 3 ZIMMER / Mietzins inkl. BK ohne HK €899,00






























OBJEKTLAGE
8076 Vasoldsberg , Graz-Umgebung, Steiermark
OBJEKTINFORMATIONEN
OBJEKTTYP: Wohnung
ZUSTAND: Neuzustand
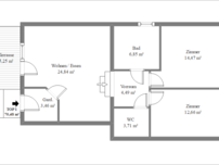
NUTZFLÄCHE: 70,48 m² m2
ZIMMER: 3
STOCKWERK: Erdgeschoss
HEIZUNG: Fernwärme
VERFÜGBAR: nach Vereinbarung
PREISINFORMATION
MIETZINS: € 649,00
BETRIEBSKOSTEN: € 250,00
HEIZKOSTEN: € 90,00 (lt. aktueller Vorschreibung)
KAUTION: € 3.000,00
MAKLERPROVISION: keine
ENERGIEAUSWEIS
HWB (KWH/M²/JAHR): 65
fGEE: 1,09
OBJEKTBESCHREIBUNG
Das Wohnhaus ist in einem neuwertigen Zustand. Nach Vereinbarung steht eine schöne 3 Zimmer Wohnung mit Terrasse zur Verfügung.
- Wohn-Esszimmer mit Terrasse
- WC & Bad separat
- geräumiges WC
- Bad mit Wanne und Fenster
- Heizung wird über Fernwärme (Holzhackgut) betrieben
15 km südöstlich von Graz, und 4 km von Hausmannstätten entfernt liegen unsere Wohnungen.
Die familienfreundlichen Wohnungen ( 2 bis 4 Zi) liegen im Zentrum von Vasoldsberg. Alle wichtigen Einrichtungen wie Arzt, Schule, Kindergarten, Bank, Post, Gemeinde, Bushaltestelle sowie Lebensmittelmarkt sind nur wenige Gehminuten entfernt, erreichbar.
Busverbindung nach Graz alle 3/4h !!- 2 Gehminuten zur Bushaltestelle
EXTRAS & AUSSTATTUNG
- 2 Parkplätze
- Kellerabteil
- Küche (optional)
IHRE BETREUER

Geschäftsführer

Immobilienmakler
Wir freuen uns darauf Sie bei einem persönlichen Gespräch zu beraten.
Vasoldsberg 50, 8076 Vasoldsberg